Introducing Sunridge Villa
* This home can not go to the Redland Bay Islands in 1 Section.
Sunridge Villa is currently in the Gin Gin Depot.
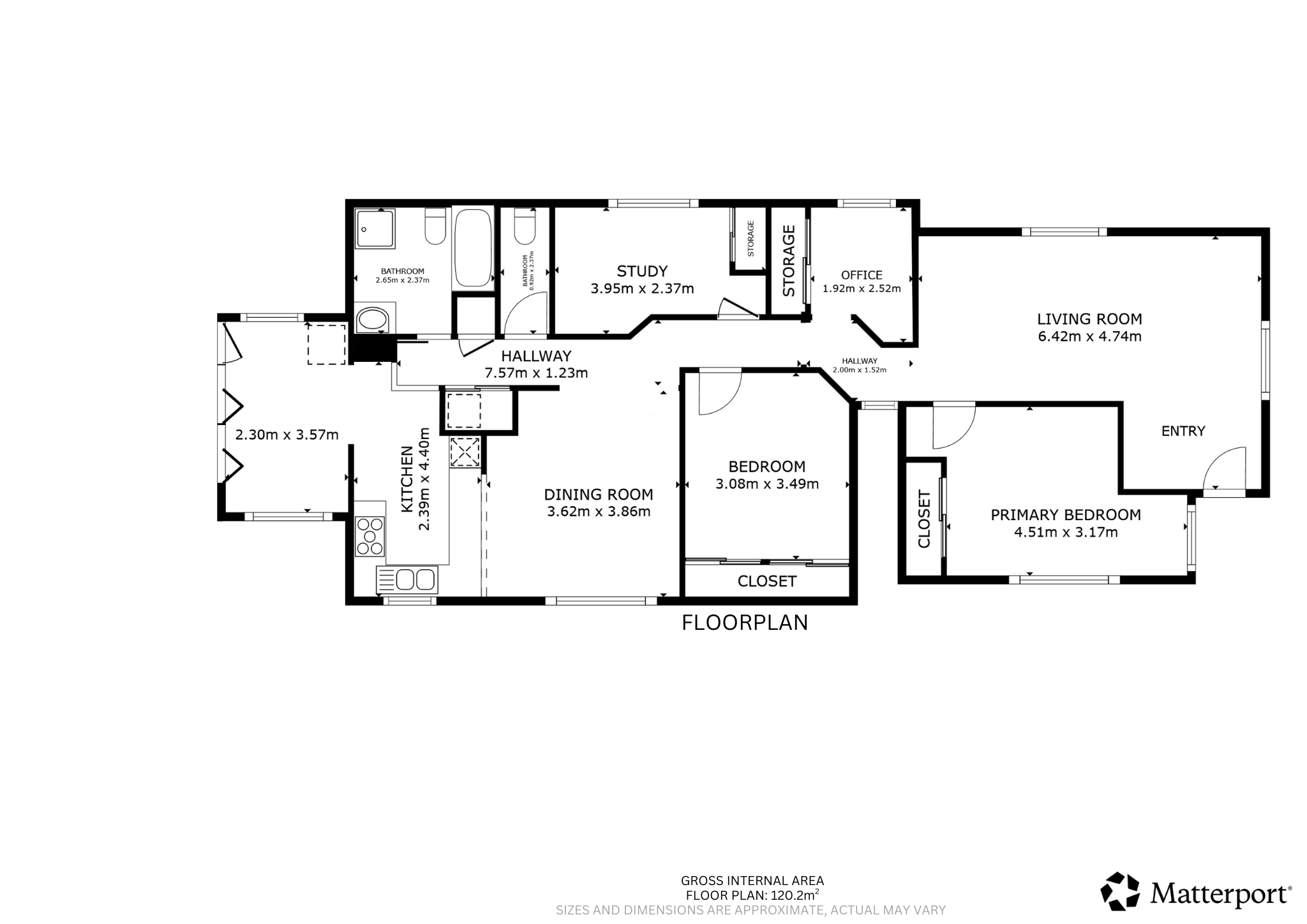
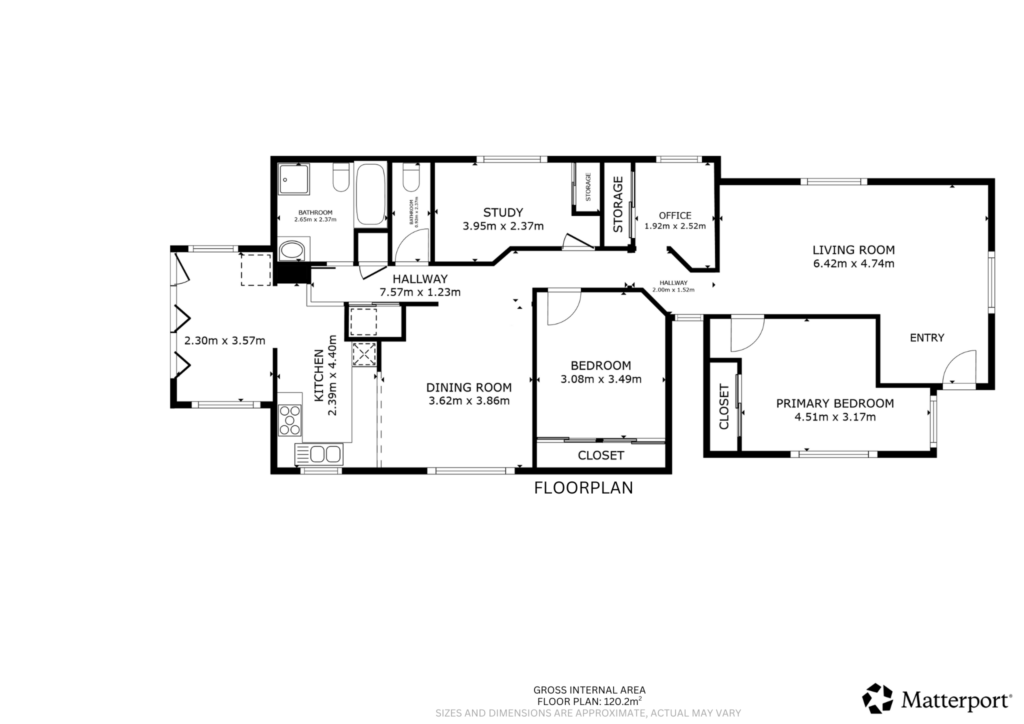
Welcome to Sunridge Villa — a light-filled retreat that blends comfort, character, and ease of relocation. With three bedrooms, a central bathroom, and the convenience of a single-piece move, this home is an excellent option for anyone looking for a seamless start to their relocation project.
* 3 light-filled bedrooms with built in wardrobes
* Separate study or office nook with ample storage
* Modern and functional bathroom featuring a separate shower, bathtub, and quality finishes
* Polished timber floors and neutral finishes
* Bi-fold timber doors connecting to the rear deck
* Covered outdoor entertaining area with ceiling fan
* One-piece move for an easier, more cost-effective relocation
To ensure that Sunridge Villa fits within your budget, please use the Interactive Cost Calculator
1 Section Relocation Pricing for Queensland Destinations $45 per kilometre beyond the initial 100 kilometres. If you are interested in relocating to New South Wales or the Islands, please contact us for a tailored relocation quote.
*All photographs were taken prior to relocation while the homes were still situated on their original sites. These images are provided for reference only and may not accurately represent the home’s appearance or condition after relocation.
You’re welcome to visit our Gin Gin Depot to view this house during our operating hours, no appointment necessary! Please note that enclosed footwear is required for entry into the yard.
With Mackay & Sons House Removals, everything you need for a seamless relocation is included in the price—no hidden fees, just expert service.
We handle the entire transportation of your home, ensuring it’s safely relocated within 100 km of its current location. For delivery beyond the 100 km range, an additional charge of $45 per km applies for a one-section relocation and $60 per km for a two-section relocation. We’ll also take care of road permits, police escorts, and pilot vehicles to ensure the safe passage of your home. Additional charges apply for island deliveries
Your home will be stumped at a depth of 900mm with a height of 900mm above the ground, as part of our standard allowance. If your project requires more extensive stumping, additional charges may apply. The final stumping cost will be determined based on the foundation plans provided by your engineer.
We offer comprehensive insurance for your home during delivery, guaranteeing protection against major structural damage that could occur during the relocation process.
We provide assistance with obtaining quotations for building plans, engineering, and certifications. Our team will help guide you through the approval process to ensure everything is on track and that you have the necessary documents when needed.
Your Guide to Buying a Removable Home
You can browse our selection of removable homes on our website or contact us to discuss your needs. We’ll help you find a home that fits your budget, style, and requirements.
Yes, we encourage buyers to inspect homes in person before making a decision. Contact us to arrange a viewing and discuss the details of the property.
Costs typically include:
Yes. Many clients complete painting, roofing, or flooring updates at our depot before delivery, which can save on scaffolding and logistics. All works must be completed by qualified and licensed tradespeople.
Yes, council approval is required for both removing the home from its original site and placing it at the new location. Our team will guide you through the permit process and ensure compliance.
The timeline varies depending on factors such as site preparation, permit approvals, and the distance of the move. On average, the process can take several weeks to several months.
In addition to the cost of purchasing the home and moving it, you should budget for:
Our team carefully prepares the home for transport, secures it, and loads it onto specialised trucks. The home is then transported and secured onto the foundation at the new site.
The timeframe varies depending on approvals and logistics. Here’s an estimate:
Yes, we can relocate homes to NSW. Additional fees apply for:

Be prepared and use our relocation cost calculator.
Sign up to our email list and be the first to know about new houses ready for purchase