Meet Arthur James
Currently located in the Narangba depot – Open Home Saturday the 25th of October from 8am to 12pm in our Narangba yard. Click here to register now!
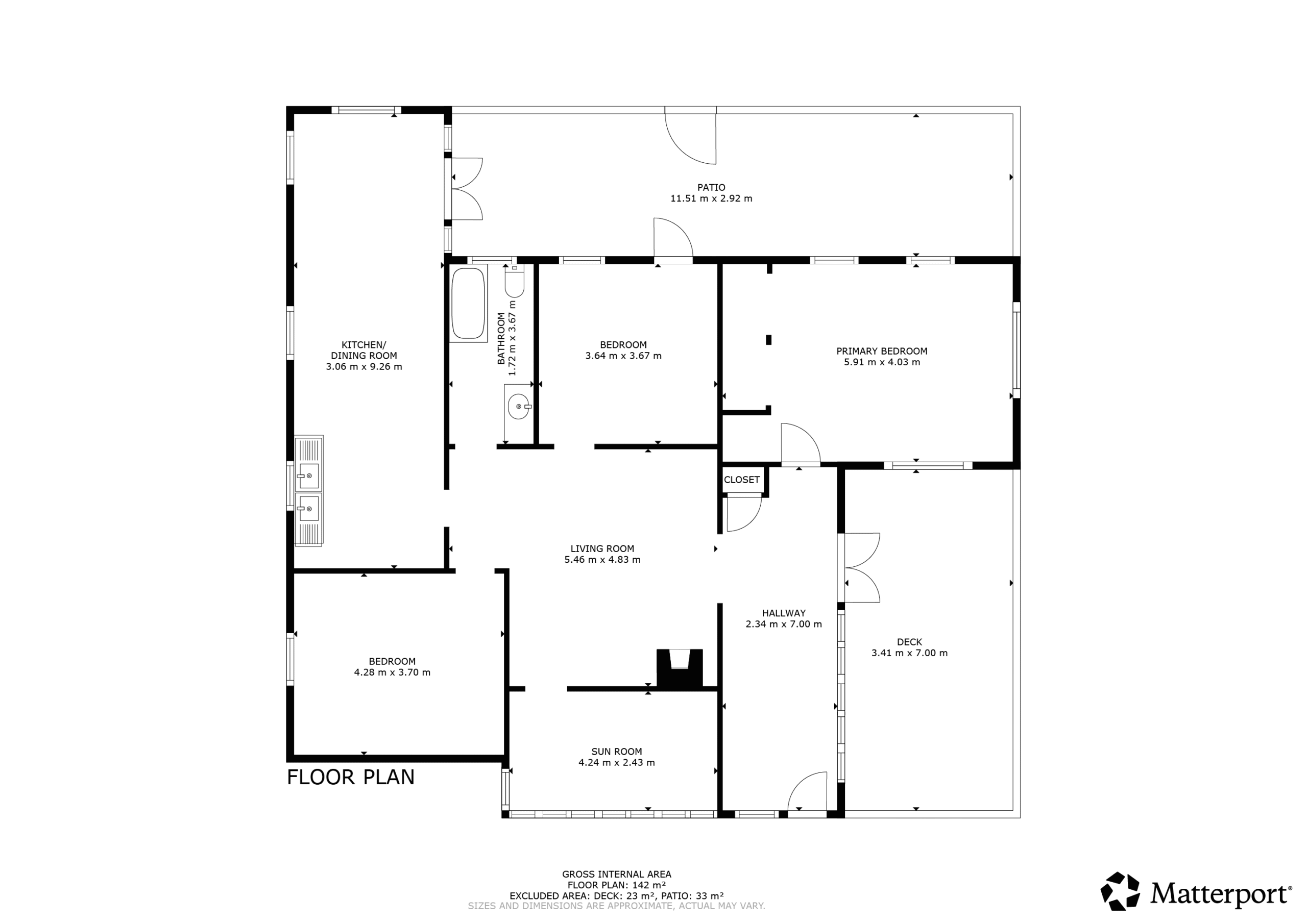
Arthur James is the kind of home that whispers history through every weatherboard. A grand old Queenslander with 4 generous bedrooms, 1 bathroom, and 3 sections — this home is all about character, space, and promise.
Yes, its a renovator, but that’s exactly the appeal! Beneath the surface sits a home with beautiful bones, traditional lines, and all the right foundations for a timeless transformation.
With wide verandahs, two large decks, timber floors, VJ walls and a traditional roofline, this home carries all the charm and structure that define a true Queensland classic. The layout is generous and airy, ready to be restored or reimagined to suit modern living while keeping its heritage soul intact. Arthur James is a home with history, heart and serious potential — for the buyer who knows a diamond in the rough when they see one.
To ensure that Arthur James fits within your budget, please use the Interactive Cost Calculator
3 Section Relocation Pricing for Queensland Destinations $105 per kilometre beyond the initial 100 kilometres. If you are interested in relocating to New South Wales or the Islands, please contact us for a tailored relocation quote.
You’re welcome to visit our Narangba Depot to view this house during our operating hours, no appointment necessary! Please note that enclosed footwear is required for entry into the yard.
Monday- Friday: 8:00am – 5:00pm
Saturday: 8:00am – 2:00pm
Sunday: CLOSED
We look forward to seeing you!
With Mackay & Sons House Removals, everything you need for a seamless relocation is included in the price—no hidden fees, just expert service.
We handle the entire transportation of your home, ensuring it’s safely relocated within 100 km of its current location. For delivery beyond the 100 km range, an additional charge of $45 per km applies for a one-section relocation and $60 per km for a two-section relocation. We’ll also take care of road permits, police escorts, and pilot vehicles to ensure the safe passage of your home. Additional charges apply for island deliveries
Your home will be stumped at a depth of 900mm with a height of 900mm above the ground, as part of our standard allowance. If your project requires more extensive stumping, additional charges may apply. The final stumping cost will be determined based on the foundation plans provided by your engineer.
We offer comprehensive insurance for your home during delivery, guaranteeing protection against major structural damage that could occur during the relocation process.
We provide assistance with obtaining quotations for building plans, engineering, and certifications. Our team will help guide you through the approval process to ensure everything is on track and that you have the necessary documents when needed.
Your Guide to Buying a Removable Home
You can browse our selection of removable homes on our website or contact us to discuss your needs. We’ll help you find a home that fits your budget, style, and requirements.
Yes, we encourage buyers to inspect homes in person before making a decision. Contact us to arrange a viewing and discuss the details of the property.
Costs typically include:
Yes. Many clients complete painting, roofing, or flooring updates at our depot before delivery, which can save on scaffolding and logistics. All works must be completed by qualified and licensed tradespeople.
Yes, council approval is required for both removing the home from its original site and placing it at the new location. Our team will guide you through the permit process and ensure compliance.
The timeline varies depending on factors such as site preparation, permit approvals, and the distance of the move. On average, the process can take several weeks to several months.
In addition to the cost of purchasing the home and moving it, you should budget for:
Our team carefully prepares the home for transport, secures it, and loads it onto specialised trucks. The home is then transported and secured onto the foundation at the new site.
The timeframe varies depending on approvals and logistics. Here’s an estimate:
Yes, we can relocate homes to NSW. Additional fees apply for:

Be prepared and use our relocation cost calculator.
Sign up to our email list and be the first to know about new houses ready for purchase