**** THIS PROPERTY IS SOLD ****
Please visit https://www.houseremovals.com.au/houses-for-sale/ for all current listings.
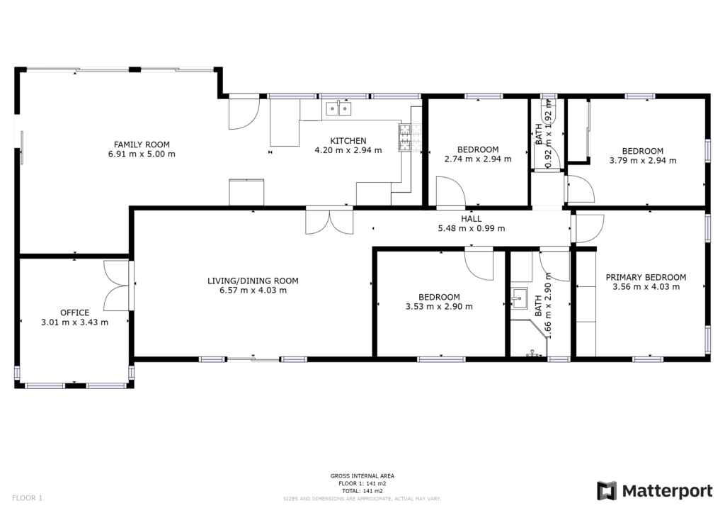
Baroon House is a fantastic 5 bedroom home that will not disappoint.
The home features a light and bright open plan kitchen, dining and living area. The spacious gloss white kitchen with stone bench tops and plenty of storage is perfect for entertaining and cooking up a storm.
There is a 6.9 meter by 5.0 meter family room and a 6.5 meter by 4 meter living and dining area providing plenty of room for the whole family.
There are 4 genuine bedrooms, all with ceiling fans and a study with build in cabinets that could easily be turned into a 5th bedroom. There is a gleaming white bathroom with freestanding frameless shower screen and plenty of storage space.
The home also comes with a $15,000 roof allowance so you can arrange your preferred contractor to install a new roof.
This is a fantastic home and will be snapped up quickly as 5 bedroom homes are very rare.
* Please note the laundry area is on slab and will not be delivered with the home*
This relocatable home is currently located at Kenmore and can be viewed during office hours.
This removal home is priced for relocation in Queensland. Please contact us if you would like a quotation to relocate the home to New South Wales.
An additional charge per km will apply for delivery sites over 100 km’s from Kenmore.
2 sections will be charged at $60 per km over the first 100 km’s included
Looking for a property just like this one? Fill out our quick contact form, and our team will get back to you.
With Mackay & Sons House Removals, everything you need for a seamless relocation is included in the price—no hidden fees, just expert service.
We handle the entire transportation of your home, ensuring it’s safely relocated within 100 km of its current location. For delivery beyond the 100 km range, an additional charge of $45 per km applies for a one-section relocation and $60 per km for a two-section relocation. We’ll also take care of road permits, police escorts, and pilot vehicles to ensure the safe passage of your home. Additional charges apply for island deliveries
Your home will be stumped at a depth of 900mm with a height of 900mm above the ground, as part of our standard allowance. If your project requires more extensive stumping, additional charges may apply. The final stumping cost will be determined based on the foundation plans provided by your engineer.
We offer comprehensive insurance for your home during delivery, guaranteeing protection against major structural damage that could occur during the relocation process.
We provide assistance with obtaining quotations for building plans, engineering, and certifications. Our team will help guide you through the approval process to ensure everything is on track and that you have the necessary documents when needed.
Your Guide to Buying a Removable Home
You can browse our selection of removable homes on our website or contact us to discuss your needs. We’ll help you find a home that fits your budget, style, and requirements.
Yes, we encourage buyers to inspect homes in person before making a decision. Contact us to arrange a viewing and discuss the details of the property.
Costs typically include:
Yes. Many clients complete painting, roofing, or flooring updates at our depot before delivery, which can save on scaffolding and logistics. All works must be completed by qualified and licensed tradespeople.
Yes, council approval is required for both removing the home from its original site and placing it at the new location. Our team will guide you through the permit process and ensure compliance.
The timeline varies depending on factors such as site preparation, permit approvals, and the distance of the move. On average, the process can take several weeks to several months.
In addition to the cost of purchasing the home and moving it, you should budget for:
Our team carefully prepares the home for transport, secures it, and loads it onto specialised trucks. The home is then transported and secured onto the foundation at the new site.
The timeframe varies depending on approvals and logistics. Here’s an estimate:
Yes, we can relocate homes to NSW. Additional fees apply for:

Be prepared and use our relocation cost calculator.
Sign up to our email list and be the first to know about new houses ready for purchase